Home Tranbjerg - Solbjerg præsenterer en helt ny udstykning midt i Tranbjerg på Mejerivænget 43-47. De arkitekttegnede rækkehuse vil med deres moderne fremtoning og indretning være let genkendelige i mange år fremover. Denne attraktive udstykning er ideel for dem, der ønsker en komfortabelt indrettet bolig uden meget vedligehold.
Boligerne består af 2-plans rækkehuse med egen grund og terrasse. Byggematerialerne er af høj kvalitet, herunder HTH-køkken med SIEMENS hårde hvidevarer samt armaturer fra Hans Grohe.

Foto: Køkken
Den indbydende entre indeholder et teknikskab, og badeværelset i stueetagen tilbyder vaskefaciliteter uden spildplads. Det store køkken/alrum har hvide elementer fra HTH og er i åben forbindelse med alrummet, som har god spiseplads til hele familien.
Opholdsstuen har et flot lysindfald fra de store gulv-til-loft-vinduespartier og udgang til egen terrasse.

Foto: Stue/opholdsrum
1. sal indeholder to store børneværelser med mange indretningsmuligheder samt et dejligt forældresoveværelse med separat walk-in garderobe og udgang til en altanterrasse med glasværn.
Badeværelset på 1. sal er udstyret med bruseniche og smart ovenlys. Alle materialer er i lyse og moderne farver, og boligerne tilbyder et dejligt indeklima med NILAN varmegenindvindingsanlæg.

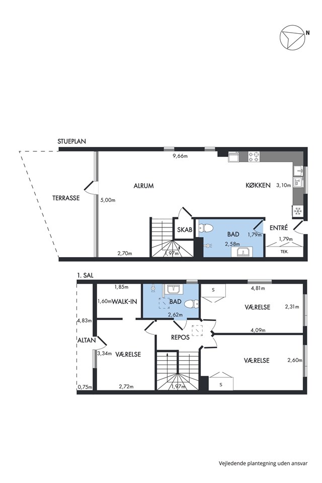
Foto: Plantegning
Derudover er der 14 mm Coastal Oak plankegulve, gipslofter med akustikfelter i underetagen og trådløs gulvvarme i alle rum. Boligerne leveres nøglefærdige med et 10 m² uisoleret skur og en 10-årig byggeskadeforsikring, som garanterer kvaliteten i byggeriet.
Beliggende midt i Tranbjerg, vil beboerne have nem adgang til offentlig transport via Letbanen, indkøb og sportsfaciliteter.
Kontakt home Tranbjerg for en projektbrochure på dette spændende byggeri.
https://home.dk/mejerivaenget-47-35/salg/raekkehus/mejerivaenget-47-8310-tranbjerg-j/sag-6140000773/